Bickel Group Architecture: Left Coast Brewery, Ontario T.i.
Software used: MS Windows, MS Word, MS Excel, Autodesk AutoCAD & Adobe Acrobat.
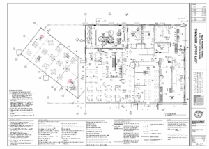
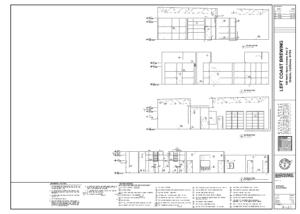
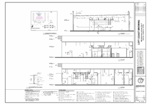
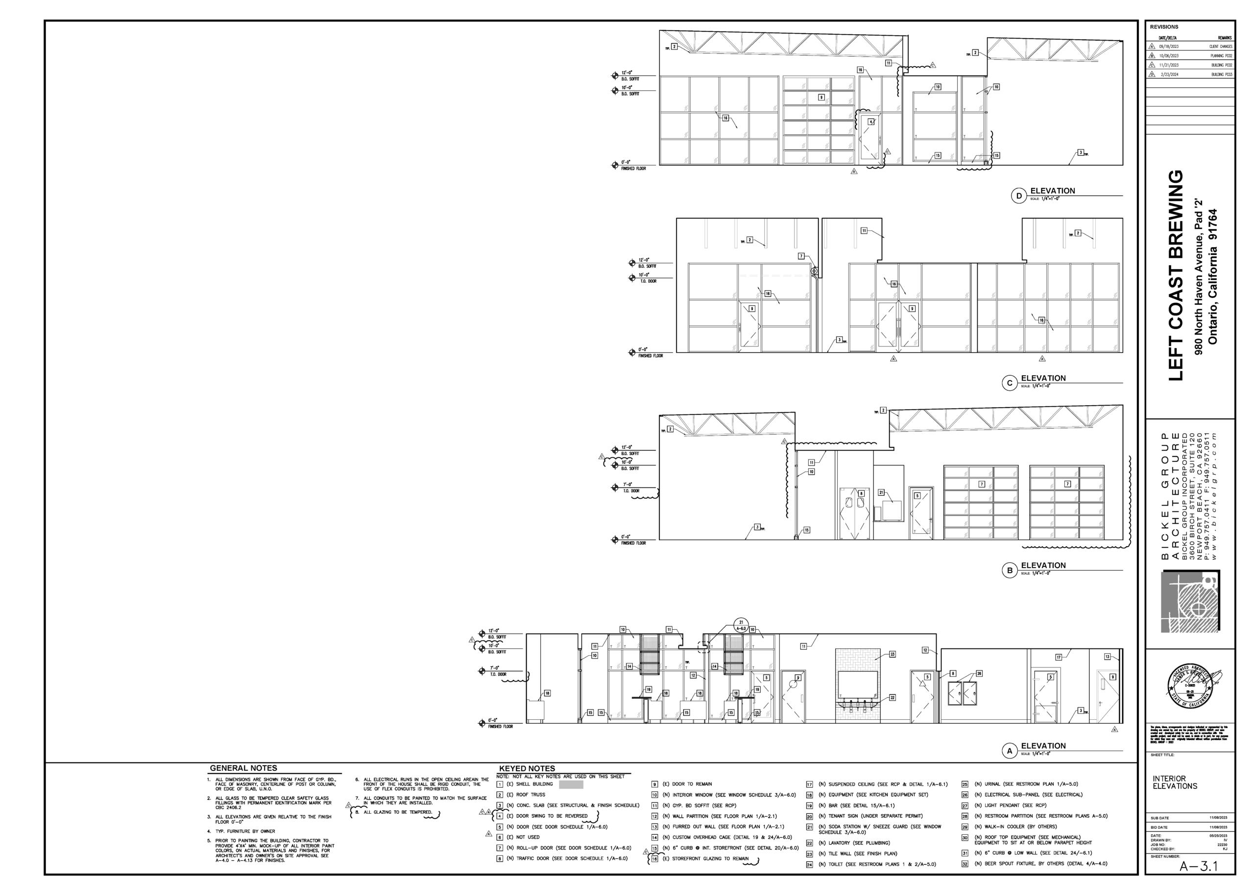
This project consisted of a new +/-8,820 square foot tenant improvement for the Left Coast Brewery. The project included new wall & glazing partitions, (2) restrooms, commercial kitchen, main bar, a walk-in cooler, (2) separate interior and exterior dining areas and a third private dining area. All the corresponding mechanical, electrical and plumbing improvements required.
Specific Responsibilities;
- Collaborated with the client for clarifying project needs and the desired aesthetic.
- Generated initial design and schematic design.
- Collaborated with the brewery layout design and design development.
- Produced complete construction documents for agency approval.
- Coordinated w/ structural, MEP and kitchen consultants for their work.
- Submitted and shepherded the project through the agency approval process.
- Performed construction administration through the construction phase









